Metal Roofing & Siding
Metal Roofing &
Siding Estimators
Metal Roofing Estimators
Post Frame Products
Michiana Building Supplies
Using technology to better service our customers
  POST-FRAME DESIGNING & ESTIMATING
We make designing, estimating and erecting your pole building a simple and hassle free process. Our expertise in the Post-Frame Building Industry, in combination with Construction Maestro Design Software, virtually eliminates the  guess-work, reduces jobsite errors and ensures a finished look that is clean, crisp and professional.

Below are examples of actual drawings we can provide with your Pole Building.
Drawings are included FREE with the purchase of any Custom Building Package or full job Metal Roofing and Siding order.
Drawings with Materials list can be purchased separately Starting at $99.00 per set.

After the design of the barn has been completed,
 
Our Construction Maestro will generate an estimate packet with the following:
Categorized Building Material List 

Floor plan or pole layout Labeled cut list Side elevations showing girt, skirt, & truss carrier layout
Pole layout configuration
Wall girt layout
Building cut-away view
Truss layout
Roof Purlin layouts
Header layouts
Roof Decking/ Sheathing layout
Siding Layout ( even shows where to cut out around doors and windows)
Metal Roofing layout.
Application drawings and details ( Siding and trim)
  Drawings can be used for a building inspector on most residential projects.
Drawings are included FREE with the purchase of any Custom Building Package
 or full job Metal Roofing and Siding order.
Drawings and Materials list can be purchased separately Starting at $99.00  per set.

If you purchase the drawings we will credit the price of them back when we bill your pole building package or metal roofing and siding package.

Example- Gable End Post, Header and Wall Girt Layout


Example- Cutaway Detail



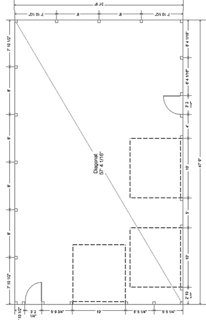
Example-Post Layout


Example- Gable End Steel Layout


Example- Sidewall Post, Girt and Header Layout.


Example-Roof Decking Layout

 
Example- Exterior 3D View



Example- Materials List

 

Please Review Carefully.
All prices based on current market conditions and are subject to change without notice or liability. 
 Michiana Building Supplies, Co. and/or its affiliated Subgroups make no representations regarding the suitability of the information contained in the documents and related graphics and/or "missions" published on this server  for any purpose whatsoever.  All such information, documents, graphics, or "missions" are provided "AS IS" without warranty of any kind and are subject to change without notice.  The entire risk arising out of their use remains with the recipient. In no event shall Michiana Building Supplies, Co. or its individual Members be liable for any direct, consequential, incidental, special, punitive, or other damages whatsoever.  Including, without limitation: damages for loss of business profits, business interruption, or loss of business information, even if the Michiana Building Supplies, Co.  has been warned of the possibility of such damages. All sales subject to credit approval and terms set forth by Michiana Building Supplies, Co.
Michiana Building Supplies, Co. is a Michigan Corporation.

©2001-2004 Michiana Building Supplies, Co.
Niles, Michigan 49120
PH 269 683 2723
FX 269 683 3287

Construction Maestro is a Divison of Symun Systems, Inc.